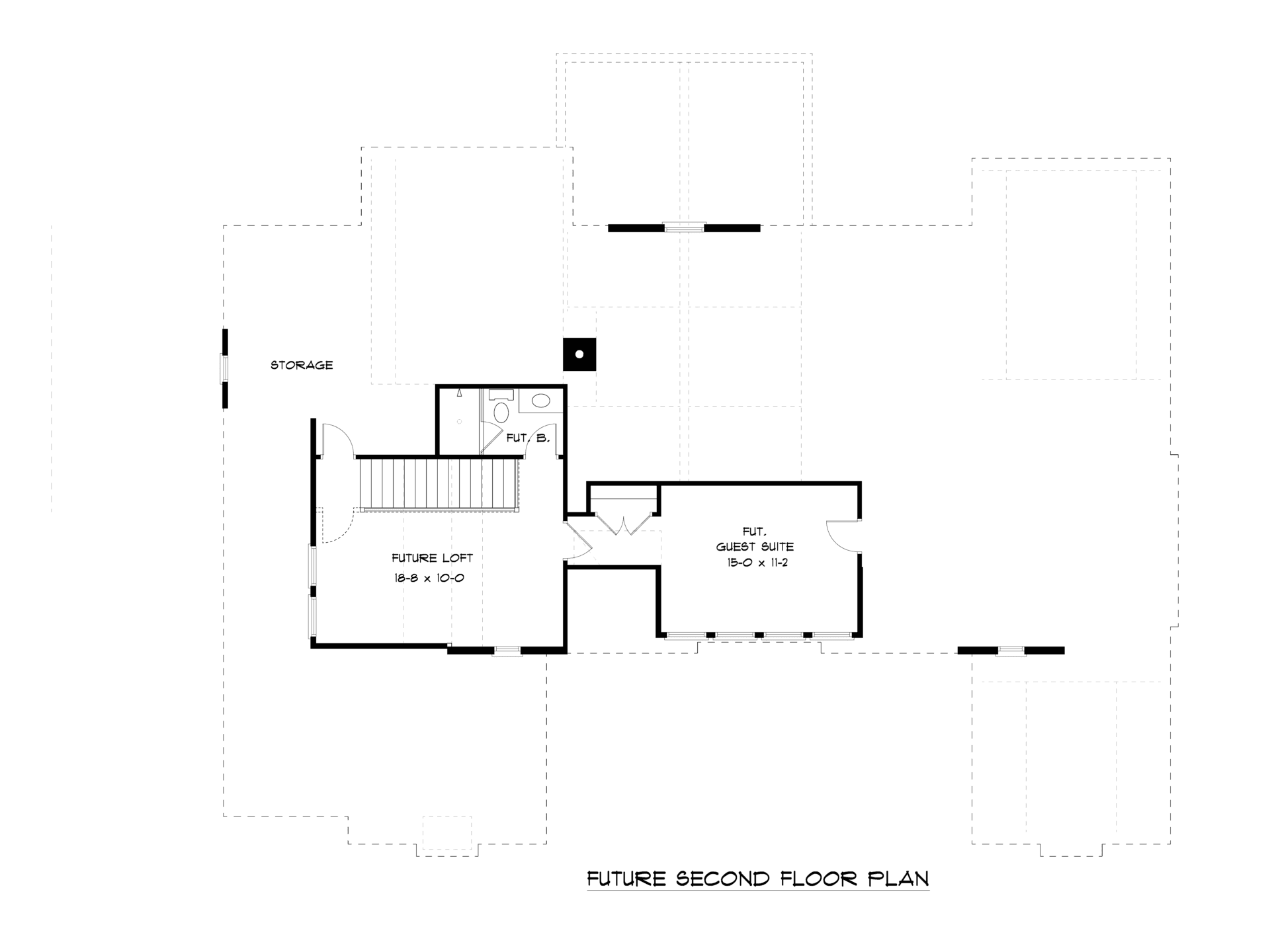
DESIGN + BUILD | PRE-DESIGNED PLANS Fairview Retreat AD-EL Fairfview Retreat-Rear – rendering FIRST FLOOR SECOND FLOOR Download Home Details